ЖК Затишний-2 - планировки

  • Застройщик Добробут
  • Адреса ул. Мандрыковская, 298
  • РАЙОН Соборный
  • МЕТРО Днепр
  • КЛАС комфорт
  • ЦЕНА, КВ.М грн/м² ~ $/м²
  • ЦЕНА, КВ.М 27,000 грн за м² ~ $ 628 $/SQ.M
  • ЦЕНА КВАРТИРЫ От 891,000 грн ~ От $ 20,742
  • Этажность 8, 15, 23
  • Активность 76
  • Технология монолитно-каркасная
  • Отопление индивидуальное
  • Территория зыкрытая
  • Стоянка стоянка

Жилой комплекс «Уютный‑2» — Днепр, ул. Мандрыковская, 298

ЖК «Уютный‑2» — современная новостройка комфорт‑класса от известного застройщика ДОБРОБУТ, расположена в одном из самых привлекательных районов правого берега Днепра — Победа‑4, напротив рынка «Кодак». Этот жилой комплекс сочетает удобную транспортную доступность, развитую социальную и торговую инфраструктуру с спокойной атмосферой для повседневной жизни.

О проекте

Комплекс состоит из двух домов с тремя секциями разной этажности — 8, 15 и 23 этажа. Общее количество квартир — около 277 единиц. Архитектура современная, с панорамными окнами, декоративным фасадом и функциональными планировками квартир.

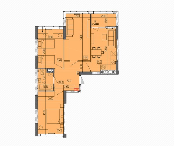
Планировки и площади квартир

  • 1‑комнатные: от ~35,9 до 45 м2
  • 2‑комнатные: от ~57 до 70 м2
  • 3‑комнатные: до ~83 м2

Высота потолков в квартирах составляет примерно 2,8 метра, что создаёт ощущение пространства и света. Жильё передаётся без отделки, что позволяет обустроить помещение по собственному вкусу.

Инфраструктура и транспорт

ЖК «Уютный‑2» расположен в районе с хорошо развитой инфраструктурой. Рядом находятся детские сады, школы, супермаркеты, заведения общественного питания, рынок и многочисленные сервисы для комфортной жизни. За несколько минут можно добраться до набережной Днепра — отличного места для прогулок и отдыха.

Преимущества жилого комплекса

  • Комфорт‑класс и современная архитектура;
  • Продуманные планировки квартир с высокими потолками;
  • Закрытая придомовая территория;
  • Развитая транспортная доступность;
  • Индивидуальное отопление в каждой квартире;
  • Паркинг, гаражные боксы и гостевая стоянка;
  • Зелёная зона и рядом — набережная реки Днепр.

Эти характеристики делают ЖК «Уютный‑2» привлекательным выбором как для молодых семей, так и для людей, ценящих комфорт и качество жизни в большом городе.

Условия приобретения

Для покупателей предусмотрены лояльные условия приобретения квартир, включая возможность покупки в рассрочку без дополнительных комиссий. Для детальной консультации и подбора вариантов обращайтесь в отдел продаж застройщика.

Заключение

ЖК «Уютный‑2» — это продуманный жилой проект с выгодным расположением, комфортными планировками и качественной инфраструктурой. Новостройка идеально подходит для современной жизни в городе Днепр: для семей, профессионалов и инвесторов в недвижимость.