Клубный квартал Chateau Grand - планировки
- Застройщик BudCapital (Одесса)
- Адреса вул. Троїцька, 11а
- РАЙОН Приморский
- КЛАС премиум
- ЦЕНА, КВ.М грн/м² ~ $/м²
- ЦЕНА, КВ.М 65,223 грн за м² ~ $ 1,491 $/SQ.M
- ЦЕНА КВАРТИРЫ От 3,558,242 грн ~ От $ 81,392
- Этажность 7
- Активность 76
- Технология монолитно-каркасная
- Отопление автономное
- Территория закрытая
- Стоянка подземная
Жилой комплекс Chateau Grand в Одессе
Chateau Grand — это клубный квартал премиум-класса от надёжного девелопера BudCapital, который возводится в самом сердце Приморского района Одессы на ул. Троицкой, 11а. Проект отличается продуманной архитектурой, высоким уровнем комфорта и собственной инфраструктурой, созданной для современной и активной жизни.
Основные характеристики жилого комплекса
- Тип: клубный жилой квартал премиум-класса
- Месторасположение: Приморский район, Одесса, ул. Троицкая, 11а
- Количество квартир: до ~230 квартир различных планировок
- Этажность: 7 этажей в 8 секциях
- Технология строительства: монолитно-каркасная конструкция с кирпичными стенами
- Высота потолков: 3 м — пространство и свет в каждой квартире
- Утепление: минеральная вата и вентилируемый фасад с керамогранитом
- Отопление: автономная котельная для стабильной подачи тепла
- Состояние: строительство продолжается, завершение — ожидается во II квартале 2026 г.
Собственная инфраструктура комплекса
Chateau Grand предлагает развитую внутреннюю инфраструктуру для комфортной жизни без необходимости покидать территорию квартала:
- Ресторан и кофейня — зоны для отдыха и социальных встреч
- Мини-маркет — всё необходимое рядом
- Зона BBQ и отдыха во дворе — для совместного досуга с семьёй и друзьями
- Спортивные площадки — активный образ жизни каждый день
- Подземный трёхуровневый паркинг с зарядками для электромобилей, местами хранения и автомойкой
- Консьерж-сервис в стильных меблированных лобби — сервис премиум-уровня
- Система очистки воды и централизованное кондиционирование — для максимального комфорта жителей
Преимущества расположения
Комплекс расположен в престижной части Одессы с развитой пешеходной и транспортной доступностью. В пешей доступности — парки, скверы, детские сады, школы, фитнес-клубы, медицинские учреждения, супермаркеты и торговые центры. Пляж «Ланжерон» — в нескольких минутах езды.
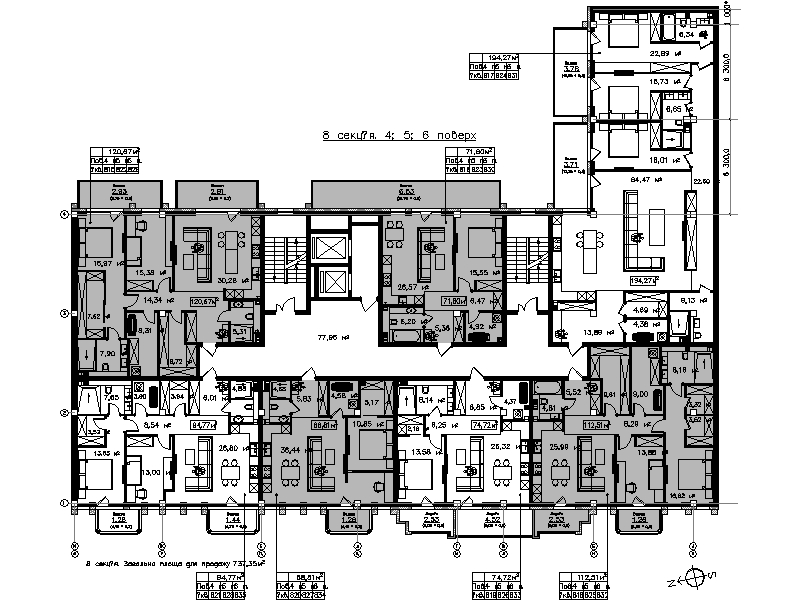
Планировки и типы квартир
В ЖК Chateau Grand представлены разнообразные планировки — от просторных 1-комнатных до больших 4-комнатных квартир. Высокие потолки, панорамное остекление и индивидуальные террасы создают ощущение пространства, света и комфорта.
Подробную информацию о планировках и актуальных ценах можно посмотреть на странице продаж или уточнить в отделе продаж.
Почему выбирают Chateau Grand
- Премиальный класс жилой недвижимости с развитой инфраструктурой и комфортом повседневной жизни.
- Закрытая охраняемая территория — безопасность и приватность жителей.
- Автономное отопление и современные инженерные решения.
- Удобное расположение в Одессе рядом с рекреационными зонами и городской инфраструктурой.
Запись на просмотр и консультацию
Чтобы узнать о наличии квартир, актуальных условиях покупки и посмотреть планировки, обратитесь в отдел продаж девелопера BudCapital или заполните форму обратной связи на сайте.