Начата продажа кладовых комнат в ЖК «Дом с ротондами»
Компания «Жилстрой-2» начинает продажу кладовых комнат в ЖК «Дом с ротондами» по ул. Сухумской (перекресток улиц Р. Роллана, Космической и Клочковской).
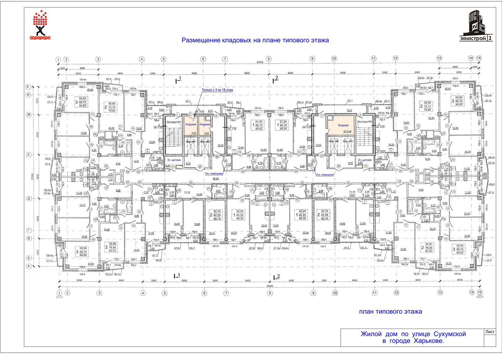
Как сообщили СтройОбзору в компании, кладовые комнаты площадью от 4,45 до 5,50 кв. м расположены на 3-18-м этажах, кладовые площадью 10,72 кв.м - на 2-19-м этажах.
Цена квадратного метра кладовых комнат составляет от 3 800 до 5 000 грн/кв.м.
По вопросам приобретения кладовых можно обращаться в отдел продаж ОДО «Жилстрой-2» по телефонам:
(057) 702-13-61,
(057) 715-28-28,
(057) 727-07-17.
